Unser Angebot
Top saniertes Reihenhaus in BS-Süd
Daten zu diesem Angebot
| Nutzungsart | Wohnen |
| Vermarktungsart | Kauf |
| Objektart | Haus |
| Objekttyp | Reihenhaus |
| PLZ | 38124 |
| Ort | Braunschweig / Leiferde |
| Land | Deutschland |
| Befeuerung | Gas |
| Heizungsart | Zentralheizung |
| Etagenzahl | 2 |
| Balkon/Terrasse | Ja |
| Kabel Sat TV | Ja |
| Dachform | Satteldach |
| Bauweise | Massiv |
| Baujahr | 1972 |
| Zustand | Saniert |
| Energieausweis | Bedarfsausweis |
| Energieausweis gültig bis | 26.11.2029 |
| Endenergiebedarf | 77,2 kWh/(m²a) |
| Baujahr lt. Energieausweis | 2019 |
| wesentlicher Energieträger | Gas |
| Verfügbar ab (Text) | sofort |
| Wohnfläche | 97 m² |
| Nutzfläche | 44 m² |
| Grundstücksgröße | 172 m² |
| Anzahl Zimmer | 5 |
| Anzahl Schlafzimmer | 3 |
| Anzahl Badezimmer | 1 |
| Anzahl sep. WC | 1 |
| Kaufpreis | 299.000 € |
| Außen-Provision | 3,57 % inkl. 19 % MwSt. anteilige Maklerprovision |
| Währung | € |
Detailberichte zu diesem Objekt
Objektbeschreibung Hier wird ein sehr gut saniertes Reihenmittelhaus in einer guten und ruhigen Wohnlage in Braunschweig - Leiferde angeboten. Der Verkäufer hat über die letzten Jahre ca. 92.000,- € in dieses Reihenhaus investiert und alle in die Jahre gekommen Komponenten des Hauses erneuert. Somit sind vor Ihrem Einzug keine größeren Arbeiten mehr zu erledigen. Auch in den nächsten Jahren kommen keine größeren Investitionen mehr auf Sie zu.
Im Erdgeschoss befinden sich ein Wohnzimmer mit 27 m² mit dem besonderen Highlight eines 14 m² großen Wintergartens, sowie eine Küche 6,6 m², ein Gäste WC 1 m², und der Flur und Treppenbereich 8,5 m² mit Einbauschrank.
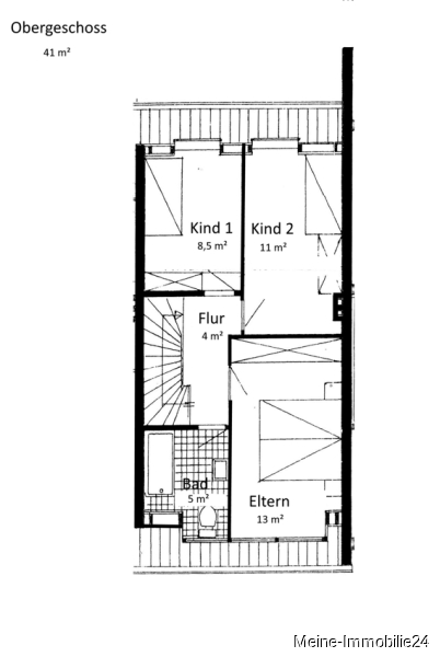
Im Obergeschoss sind 3 Schlafzimmer (Kind 1 - 8,5 m², Kind 2 - 11 m², Eltern 13 m²) vorhanden. Weiter finden Sie auf dieser Etage ein Tageslichtbad 5 m² mit Badewanne. Im Dachboden ist ein weiteres 19 m² großes Zimmer vorhanden. Dieses kann mit dem Kinderzimmer 1 zu einem großen Zimmer (8,5 m²+19m²= 27,5 m²) verbunden werden.
Der Keller hat 5 Räume die unterschiedlich genutzt werden können. In einem der Räume ist eine Dusche eingebaut. Im Heizungskeller ist eine Gaszentralheizung mit Warmwasser der Marke Vaillant untergebracht. Diese wurde 2019 komplett erneuert. Dieser Raum eignet sich auch zur Trocknung der Wäsche. Das Eigentumsgrundstück hat eine Größe von 172 m². Im Garten ist ein Holzhaus für Gartengeräte und Gartenmöbel vorhanden.
- Baujahr 1972
- 172 m² Eigentumsland
- komplett saniert ( für ca. 92.000,- in den letzten Jahren - Rechnungen vorhanden )
- Wohnfläche 97,25 m² zuzüglich Dachboden + 19 m² Fläche - Zugang über Kinderzimmer 1
- EG 57 m² Wohnfläche mit Wohnzimmer, Küche, Flur, Treppe, Gäste WC, Wintergarten
- OG 41 m² Wohnfläche mit Kinderzimmer 1, Kinderzimmer 2, Schlafzimmer, Bad, Flur, Treppe
- DG 19 m² Nutzfläche (ausgebaut, neu gedämmt) als Extra Zimmer - Zugang über Kinderzimmer 1 möglich
- KG 43 m² Nutzfläche 4 Kellerräume (1x mit Dusche), Heizungskeller, Flur, Treppenbereich
- Neue Heizung Vaillant Gastherme mit Warmwasser Bj. 2019
- Neue Elektrik 2018
- Fenster im EG 2003
- Fensterscheiben im EG getauscht 2019
- Fenster OG in der Gaube mit 3-fach Verglasung Bj. 2019
- Dachfenster OG Bj. 2019 und 2013
- Rollläden Dachfenster neu 2022
- Bad OG Neu
- alle Innentüren neu incl. Türgriffe 2022
- Hauseingangstür neu 2019
- Hauseingangs - Überdachung neu 2013
- Parkett im Wohnzimmer neu 2022
- Laminat im OG neu 2019
- Haus innen neu gestrichen
- Holzdecken von PARADOR
- Gehwegplatten Hauseingang neu 2013
- Außenfassade gedämmt in 2013
- Dach gedämmt in 2013
- Dachgaube mit Schiefer neu belegt 2010
- Dachrinnen neu 2019
- Wintergarten neue Dachplatten 2022
- Wintergarten neue Fliesen 2019
- Das Objekt ist noch bis 30.06.2024 vermietet Sonstige Angaben Sie möchten eine ähnliche Immobilie verkaufen oder vermieten ?
Wir erledigen sehr gern auch Ihre *Hausaufgaben*
Rufen Sie uns an. Tel.:0160-8263616
Die 100% -ige Bewertung unserer Kunden bei Immobilien Scout 24 spricht für uns..
Auch für 2020/21 sind wir für unsere langjährige Erfahrung, unser besonderes Engagement und für überdurchschnittliche Kundenbewertungen ausgezeichnet worden.
Im Erdgeschoss befinden sich ein Wohnzimmer mit 27 m² mit dem besonderen Highlight eines 14 m² großen Wintergartens, sowie eine Küche 6,6 m², ein Gäste WC 1 m², und der Flur und Treppenbereich 8,5 m² mit Einbauschrank.
Im Obergeschoss sind 3 Schlafzimmer (Kind 1 - 8,5 m², Kind 2 - 11 m², Eltern 13 m²) vorhanden. Weiter finden Sie auf dieser Etage ein Tageslichtbad 5 m² mit Badewanne. Im Dachboden ist ein weiteres 19 m² großes Zimmer vorhanden. Dieses kann mit dem Kinderzimmer 1 zu einem großen Zimmer (8,5 m²+19m²= 27,5 m²) verbunden werden.
Der Keller hat 5 Räume die unterschiedlich genutzt werden können. In einem der Räume ist eine Dusche eingebaut. Im Heizungskeller ist eine Gaszentralheizung mit Warmwasser der Marke Vaillant untergebracht. Diese wurde 2019 komplett erneuert. Dieser Raum eignet sich auch zur Trocknung der Wäsche. Das Eigentumsgrundstück hat eine Größe von 172 m². Im Garten ist ein Holzhaus für Gartengeräte und Gartenmöbel vorhanden.
Energieausweis
Art: Bedarfsausweis
Gültig bis: 26.11.2029
Endenergiebedarf: 77.20 kWh/(m²*a)
Baujahr lt. Energieausweis: 2019
Wesentlicher Energieträger: Gas
Klasse: C
- Baujahr 1972
- 172 m² Eigentumsland
- komplett saniert ( für ca. 92.000,- in den letzten Jahren - Rechnungen vorhanden )
- Wohnfläche 97,25 m² zuzüglich Dachboden + 19 m² Fläche - Zugang über Kinderzimmer 1
- EG 57 m² Wohnfläche mit Wohnzimmer, Küche, Flur, Treppe, Gäste WC, Wintergarten
- OG 41 m² Wohnfläche mit Kinderzimmer 1, Kinderzimmer 2, Schlafzimmer, Bad, Flur, Treppe
- DG 19 m² Nutzfläche (ausgebaut, neu gedämmt) als Extra Zimmer - Zugang über Kinderzimmer 1 möglich
- KG 43 m² Nutzfläche 4 Kellerräume (1x mit Dusche), Heizungskeller, Flur, Treppenbereich
- Neue Heizung Vaillant Gastherme mit Warmwasser Bj. 2019
- Neue Elektrik 2018
- Fenster im EG 2003
- Fensterscheiben im EG getauscht 2019
- Fenster OG in der Gaube mit 3-fach Verglasung Bj. 2019
- Dachfenster OG Bj. 2019 und 2013
- Rollläden Dachfenster neu 2022
- Bad OG Neu
- alle Innentüren neu incl. Türgriffe 2022
- Hauseingangstür neu 2019
- Hauseingangs - Überdachung neu 2013
- Parkett im Wohnzimmer neu 2022
- Laminat im OG neu 2019
- Haus innen neu gestrichen
- Holzdecken von PARADOR
- Gehwegplatten Hauseingang neu 2013
- Außenfassade gedämmt in 2013
- Dach gedämmt in 2013
- Dachgaube mit Schiefer neu belegt 2010
- Dachrinnen neu 2019
- Wintergarten neue Dachplatten 2022
- Wintergarten neue Fliesen 2019
- Das Objekt ist noch bis 30.06.2024 vermietet Sonstige Angaben Sie möchten eine ähnliche Immobilie verkaufen oder vermieten ?
Wir erledigen sehr gern auch Ihre *Hausaufgaben*
Rufen Sie uns an. Tel.:0160-8263616
Die 100% -ige Bewertung unserer Kunden bei Immobilien Scout 24 spricht für uns..
Auch für 2020/21 sind wir für unsere langjährige Erfahrung, unser besonderes Engagement und für überdurchschnittliche Kundenbewertungen ausgezeichnet worden.
Ihr Ansprechpartner
Meine-Immobilie24
Herr Martin Peithmann
Essenroder Straße 23
38527 Meine
Kontakt zu Martin Peithmann
Mobil: 0160-8263616
Telefon: 0160-8263616
Kontakt im Internet
Schreiben Sie mir eine E-Mail
Website des Unternehmens
Weitere Informationen
| externe Objnr | BA070 |
| Dist. Autobahn (km) | 1 km |
| Dist. Kindergarten (km) | 1 km |
| Dist. Grundschule (km) | 1 km |
| Dist. Realschule (km) | 5 km |
| Dist. Gymnasium (km) | 5 km |
| Dist. Zentrum (km) | 9 km |

































