Unser Angebot
*Verkauft* Reihenmittelhaus in Braunschweig-Rautheim
Daten zu diesem Angebot
| Nutzungsart | Wohnen |
| Vermarktungsart | Kauf |
| Objektart | Haus |
| Objekttyp | Reihenmittel |
| PLZ | 38126 |
| Ort | Braunschweig / Rautheim |
| Land | Deutschland |
| Befeuerung | Öl |
| Heizungsart | Zentralheizung |
| Etagenzahl | 3 |
| Balkon/Terrasse | Ja |
| Kabel Sat TV | Ja |
| Dachform | Satteldach |
| Bauweise | Massiv |
| Balkon | Ja |
| Küche | Einbauküche |
| Terrasse | Ja |
| Baujahr | 1961 |
| Zustand | Renovierungsbedürftig |
| Energieausweis | Bedarfsausweis |
| Energieausweis gültig bis | 06.07.2032 |
| Endenergiebedarf | 184,8 kWh/(m²a) |
| Baujahr lt. Energieausweis | 2012 |
| wesentlicher Energieträger | Öl |
| Wohnfläche | 102 m² |
| Nutzfläche | 41 m² |
| Grundstücksgröße | 201 m² |
| Anzahl Zimmer | 5 |
| Anzahl Schlafzimmer | 4 |
| Anzahl Badezimmer | 1 |
| Anzahl sep. WC | 1 |
| Kaufpreis | 219.000 € |
| Außen-Provision | 3,57 % inkl. 19 % MwSt. anteilige Maklerprovision |
| Währung | € |
Detailberichte zu diesem Objekt
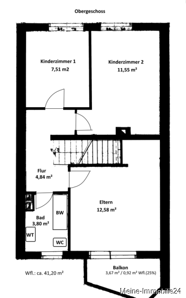
Objektbeschreibung Dieses sanierungsbedürftige Reihenmittelhaus wurde 1961 erbaut. Es hat ca. 200 m² Eigentumsland als Grundstücksfläche. Die Wohnfläche beträgt ca. 102 m² und bietet im EG (ca. 46 m²) ein Wohn- /Esszimmer 21,43 m², eine Küche 9,28 m², einen Eingangs- /Flurbereich 9,55 m² sowie ein Gäste WC (2,30 m²). Vom Wohn- / Esszimmer geht es auf eine 12,50 m² (Wfl.3,12 m²) große Außenterrasse. Die Außenterrasse kann auch überbaut werden. So können das Wohnzimmer (+10 m²) und die beiden Kinderzimmer (gesamt +10 m²) noch vergrößert werden. Das Obergeschoss (41,20 m²) bietet 3 Schlafzimmer (7,51m²/11,55 m²/12,58 m²) und ein Tageslichtbad (3,80 m²) mit Badewanne, ein Balkon (Wfl.0,92 m²/Nfl.3,67 m²) sowie den Zugang zum ausgebauten Dachgeschoss (Wfl.15 m²/Nfl. 39 m²). Hier steht eine weitere Fläche zur Nutzung als Zimmer zur Verfügung.
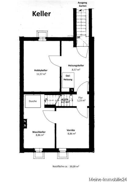
Im Kellerbereich (Nzfl. ca. 40 m²) ist ein Waschkeller mit Dusche, ein Hobbykeller, ein Heizungskeller mit Außenzugang in den Garten, sowie ein Vorräte / Lagerkeller. Vor dem Hauseingang befindet sich noch ein weiterer Gartenanteil. Hier kann zusätzlich ein Gartenhaus untergebracht werden.
- renovierungsbedürftig
- Bj.: 1961
- Eigentumsgrundstück 200 m²
- Wohnfläche Erdgeschoss ca. 46 m²
- Wohnfläche Obergeschoss ca. 41 m²
- 4 Zimmer ( 3 Schlafzimmer )
- Nutzfläche DG ca. 39 m² Grundfläche / ca. 15 m² Wohnfläche ( ausgebautes Dachgeschoss )
- Nutzfläche Keller - ca. 40 m²
- Kelleraußeneingang
- Balkon (wurde 2005 saniert)
- Terrasse 12,50 m²
- Ölheizung Bj. 2012 (laut Energieausweis)
- Erdtank mit neuem TÜV
- Schornstein wurde 2005 neu verschiefert und neu abgedichtet
- Energieklasse G
- Einbauküche (älter)
- Garten in Südlage
- Extra Gartenzugang
- Holzfenster mit ISO-Glas
- Rollläden
- Schöne Wohnlage
- Terrasse kann überbaut werden (+ Wfl. 10 m² im EG und + Wfl. 10 m² im OG) !!! Sonstige Angaben Sie möchten eine ähnliche Immobilie verkaufen oder vermieten ?
Wir erledigen sehr gern auch Ihre *Hausaufgaben*
Rufen Sie uns an. Tel.:05304-9440598
Die 100% -ige Bewertung unserer Kunden bei Immobilien Scout 24 spricht für uns..
Auch für 2020/21 sind wir für unsere langjährige Erfahrung, unser besonderes Engagement und für überdurchschnittliche Kundenbewertungen ausgezeichnet worden.
Im Kellerbereich (Nzfl. ca. 40 m²) ist ein Waschkeller mit Dusche, ein Hobbykeller, ein Heizungskeller mit Außenzugang in den Garten, sowie ein Vorräte / Lagerkeller. Vor dem Hauseingang befindet sich noch ein weiterer Gartenanteil. Hier kann zusätzlich ein Gartenhaus untergebracht werden.
Energieausweis
Art: Bedarfsausweis
Gültig bis: 06.07.2032
Endenergiebedarf: 184.80 kWh/(m²*a)
Baujahr lt. Energieausweis: 2012
Wesentlicher Energieträger: Öl
Klasse: F
- renovierungsbedürftig
- Bj.: 1961
- Eigentumsgrundstück 200 m²
- Wohnfläche Erdgeschoss ca. 46 m²
- Wohnfläche Obergeschoss ca. 41 m²
- 4 Zimmer ( 3 Schlafzimmer )
- Nutzfläche DG ca. 39 m² Grundfläche / ca. 15 m² Wohnfläche ( ausgebautes Dachgeschoss )
- Nutzfläche Keller - ca. 40 m²
- Kelleraußeneingang
- Balkon (wurde 2005 saniert)
- Terrasse 12,50 m²
- Ölheizung Bj. 2012 (laut Energieausweis)
- Erdtank mit neuem TÜV
- Schornstein wurde 2005 neu verschiefert und neu abgedichtet
- Energieklasse G
- Einbauküche (älter)
- Garten in Südlage
- Extra Gartenzugang
- Holzfenster mit ISO-Glas
- Rollläden
- Schöne Wohnlage
- Terrasse kann überbaut werden (+ Wfl. 10 m² im EG und + Wfl. 10 m² im OG) !!! Sonstige Angaben Sie möchten eine ähnliche Immobilie verkaufen oder vermieten ?
Wir erledigen sehr gern auch Ihre *Hausaufgaben*
Rufen Sie uns an. Tel.:05304-9440598
Die 100% -ige Bewertung unserer Kunden bei Immobilien Scout 24 spricht für uns..
Auch für 2020/21 sind wir für unsere langjährige Erfahrung, unser besonderes Engagement und für überdurchschnittliche Kundenbewertungen ausgezeichnet worden.
Ihr Ansprechpartner
Meine-Immobilie24
Herr Martin Peithmann
Essenroder Straße 23
38527 Meine
Kontakt zu Martin Peithmann
Mobil: 0160-8263616
Telefon: 0160-8263616
Kontakt im Internet
Schreiben Sie mir eine E-Mail
Website des Unternehmens
Weitere Informationen
| externe Objnr | NJ662 |
| Dist. Autobahn (km) | 1 km |
| Dist. Kindergarten (km) | 1 km |
| Dist. Grundschule (km) | 0,1 km |
| Dist. Realschule (km) | 5 km |
| Dist. Gymnasium (km) | 5 km |
| Dist. Zentrum (km) | 6 km |



























